Design
Virtual Worlds 3D Software
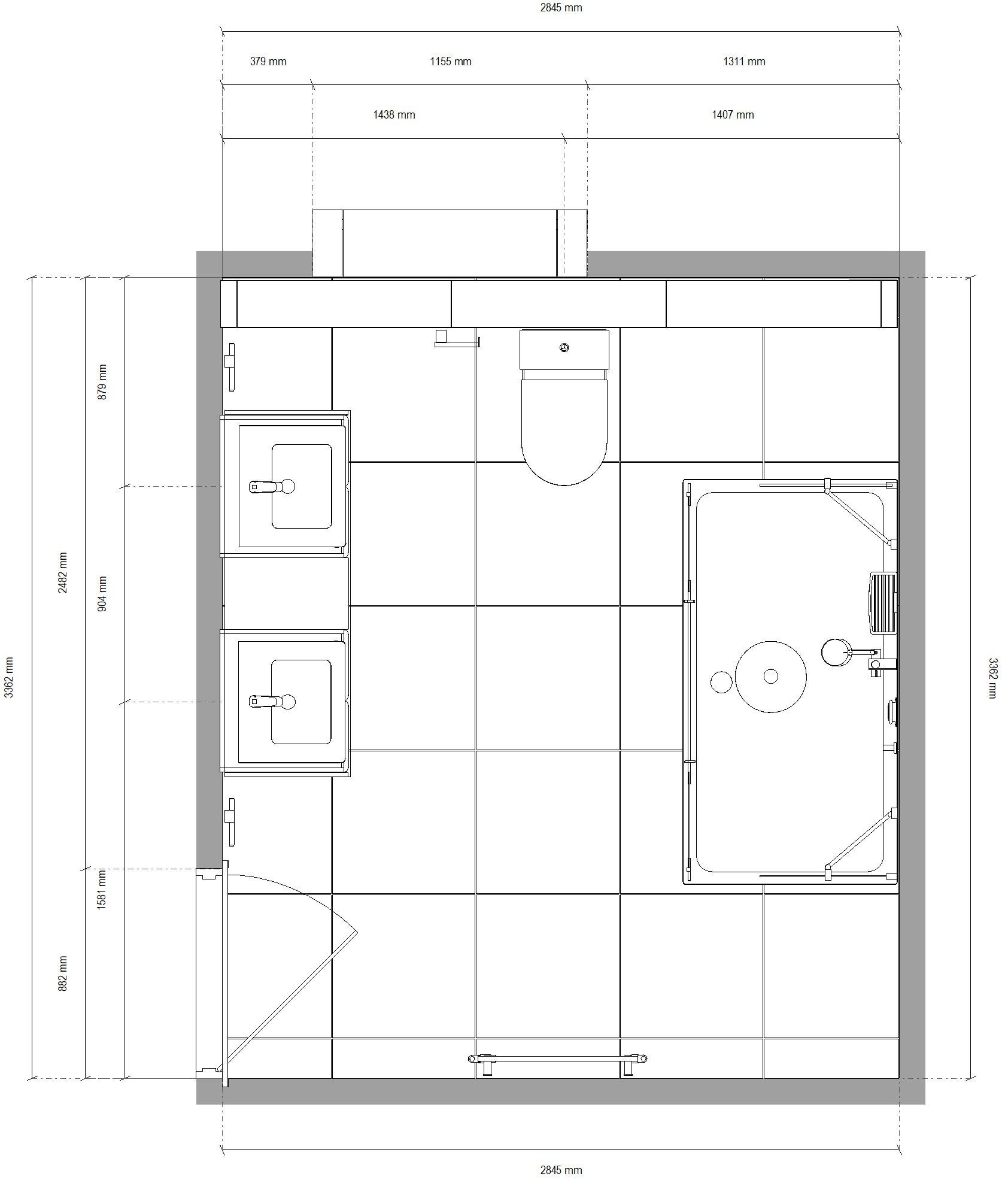
Our design service uses the best software on the market from Virtual worlds which is all in 3d. The images from the software are realistic quality and there is also a 3d picture option which you can access too giving the ability to move around the room on your own computer or phone.
If you wish to purchase the parts from us as well we offer great discounts too.
This software gives the ability to visualise the project in terms of space and aesthetics minimising the problems that can occur with poor planning.
The design service is chargeable and not part of the free of charge installation estimate. This is because it takes a couple of hours to draw up a design from the dimensions of your bathroom, but if you purchase the install from us the design will be refunded off the fitting price.
Design prices are below:




